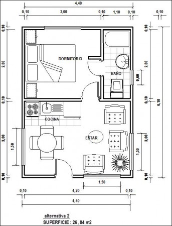
Inicio > PLANTAS > PLANTA 26-2.jpg
Anterior Presentación de imágenes Siguiente
—————
Volver
Preguntas frecuentes está vacío.